Ciudad San Ramón - Calle Lima 342

icon-etiqueta
950.000

Icon-Casa
Icon-habitación
4
Icon-Baño
5

Exclusiva promoción de chalets unifamiliares de alto nivel junto al Pantano de San Juan, ubicada en un enclave natural único, con club naútico privado y seguridad 24 horas, donde arquitectura contemporánea, sostenibilidad y confort se integran de forma armoniosa.

Las viviendas han sido diseñadas con una clara vocación premium, priorizando la amplitud de los espacios, la entrada de luz natural y la conexión directa con el entorno. Grandes ventanales, líneas limpias y materiales de alta calidad definen un proyecto elegante, funcional y atemporal.

Cada chalet se asienta sobre parcela privada, con zonas ajardinadas y espacios exteriores pensados para el disfrute y la privacidad, creando una experiencia residencial exclusiva en contacto permanente con la naturaleza.

Espacios y distribución

Los interiores ofrecen una cuidada distribución, con salones de generosas dimensiones abiertos al exterior, cocinas de diseño integradas o independientes según tipología, y dormitorios concebidos como auténticas estancias de descanso. Los baños destacan por su estética contemporánea y la calidad de sus acabados.

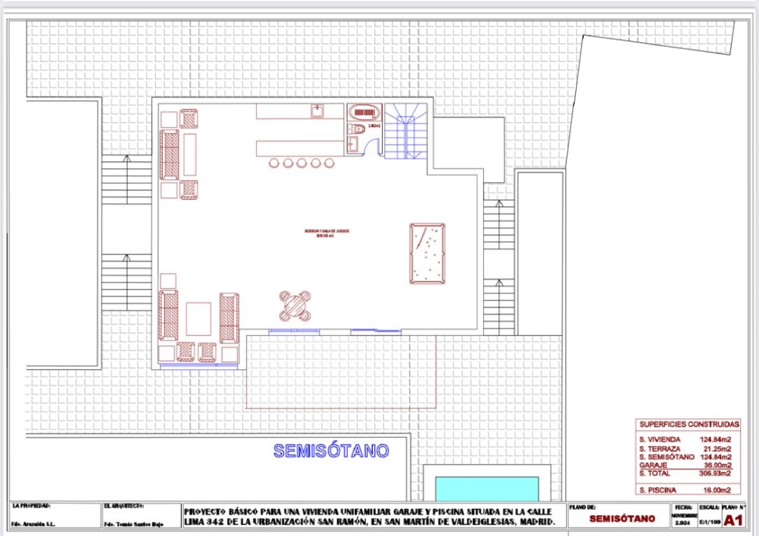
La vivienda dispone de garaje privado con capacidad para dos vehículos, con acceso directo, aportando comodidad, seguridad y discreción.

Memoria de calidades · Nivel alto

  • Sistema de aerotermia de última generación, para calefacción, refrigeración y producción de agua caliente sanitaria, garantizando máxima eficiencia energética y sostenibilidad.

  • Suelo radiante y refrescante en toda la vivienda (opcional) proporcionando un confort térmico uniforme y una estética limpia sin elementos visibles.

  • Carpintería exterior de altas prestaciones, con perfiles de aluminio o PVC de gama alta, rotura de puente térmico y acristalamientos de control solar y acústico.

  • Carpintería interior de diseño, con puertas de suelo a techo y armarios empotrados totalmente equipados.

  • Cocinas de alto nivel, con mobiliario de diseño, encimeras de primera calidad y electrodomésticos integrables (según especificación).

  • Baños premium, equipados con sanitarios suspendidos, griferías de diseño y revestimientos cerámicos de gran formato.

  • Elevado aislamiento térmico y acústico, cumpliendo con exigentes estándares de eficiencia y confort.

  • Preinstalación para punto de carga de vehículo eléctrico en el garaje.

Un estilo de vida exclusivo

Situados en uno de los entornos naturales más valorados de la Comunidad de Madrid, estos chalets permiten disfrutar de un estilo de vida exclusivo, rodeado de naturaleza, actividades al aire libre y vistas privilegiadas, sin renunciar a las prestaciones y comodidades de una vivienda contemporánea de alto nivel.

Una propuesta residencial única, pensada para quienes buscan diseño, privacidad, eficiencia y calidad, tanto como residencia habitual como segunda vivienda de alto standing.

CARACTERÍSTICAS
  • Ubicación: Pantano de San Juan

  • Superficie construida: 320 m²

  • Parcela: 1500 m²

  • Dormitorios: 4

  • Baños: 5

  • SPA privado incluido

  • Eficiencia energética: Clase A

  • Precio: Desde 950.000 €

  • Estado: Disponible

UBICACIÓN